Granny Flat Floor Plans

We can get you to the start of your granny flat build sooner by using one of our time-saving pre-designed floor plans below. These comply with the maximum 60 square metre limit.

Alternatively, we can have these plans customised for example, to better suit your block, or for a specific requirement.

The additions of decks and carports can be added where space permits, and within permitted planning regulations.

Nomads Rest

Generous two Bedrooms with build in robes, combined bathroom/laundry, spacious living area, plentiful kitchen with ample storage, with rear laundry door.

Dunworkin

Minimalist living open layout, two Bedrooms with built in robes, combined Bathroom/laundry. Put your feet up!

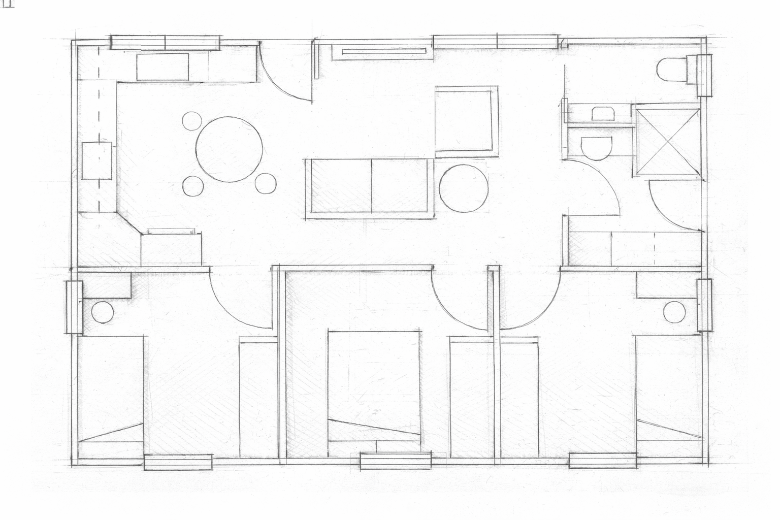
Suite Dreams

Two bedrooms with built in robes, combined bathroom/laundry. Traditional ‘L’ shaped kitchen-dining-lounge.

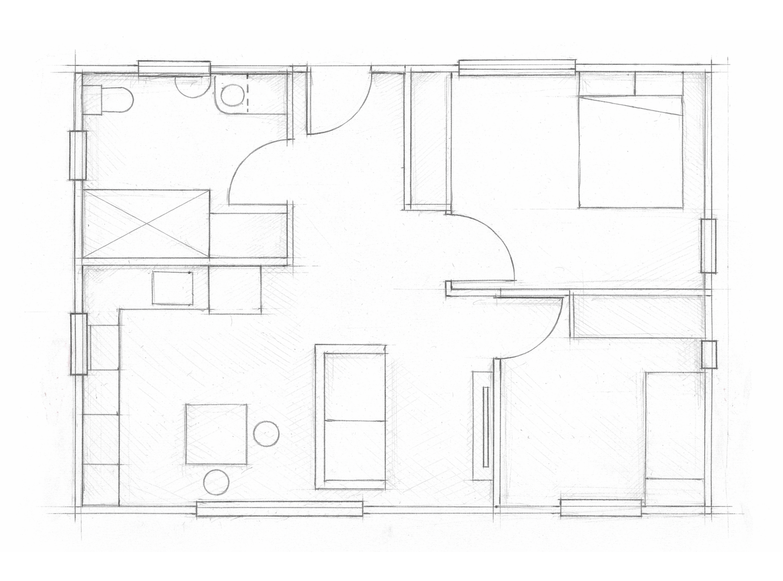
Aged To Perfection

Welcome to ‘Livable Housing’. Designed for the elderly that require a home built specifically for their needs. Also suitable for ‘Assisted Living’. Two bedrooms with built in robes, combined bathroom/laundry, wheelchair friendly and the Age in Place features.

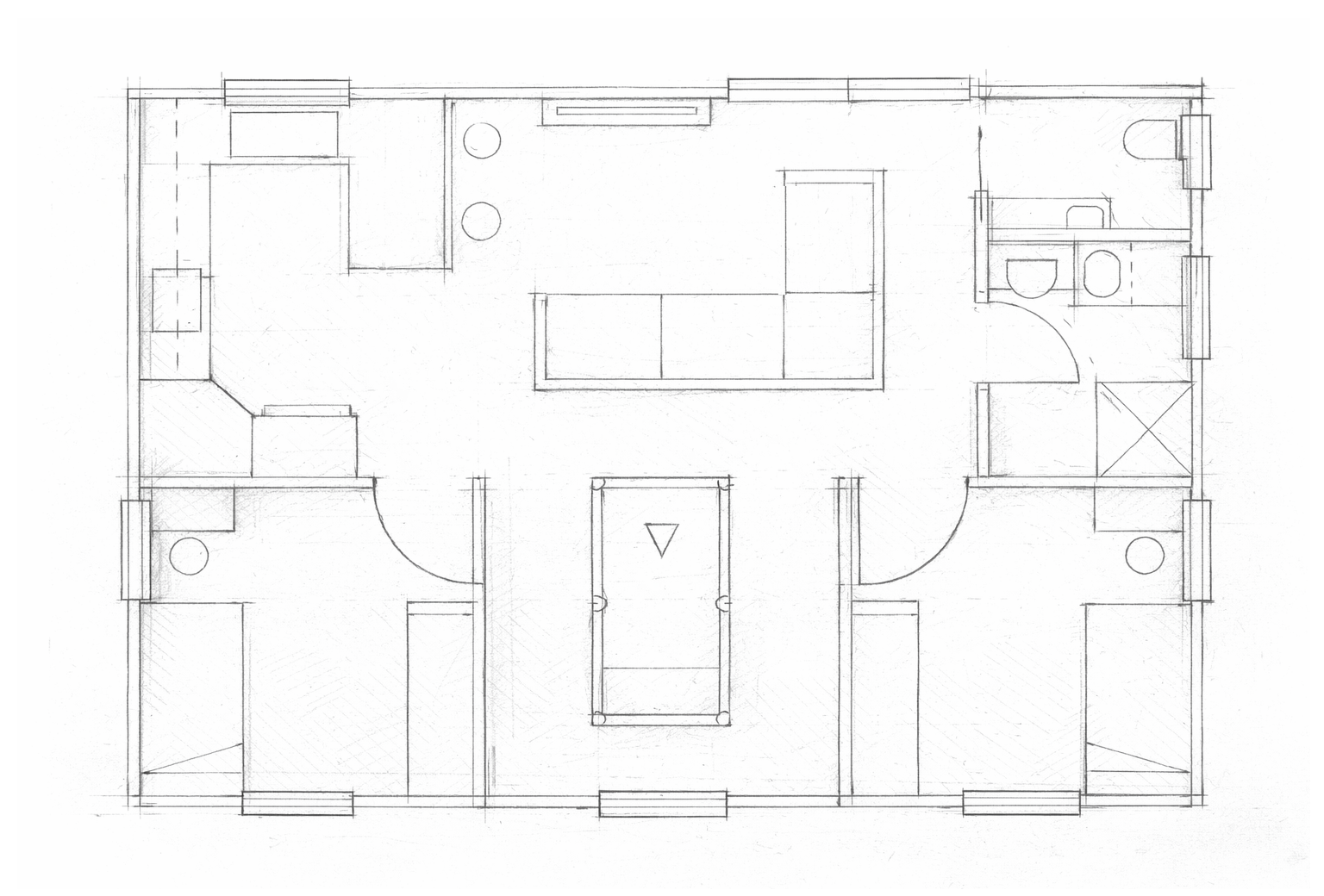
Sofa So Good

Designed as a teenagers hangout (parents respite). Continuing with two Bedrooms with built in robes, combined Bathroom/laundry, separate toilet, with space for toys like a pool table. Wi-fi throughout.

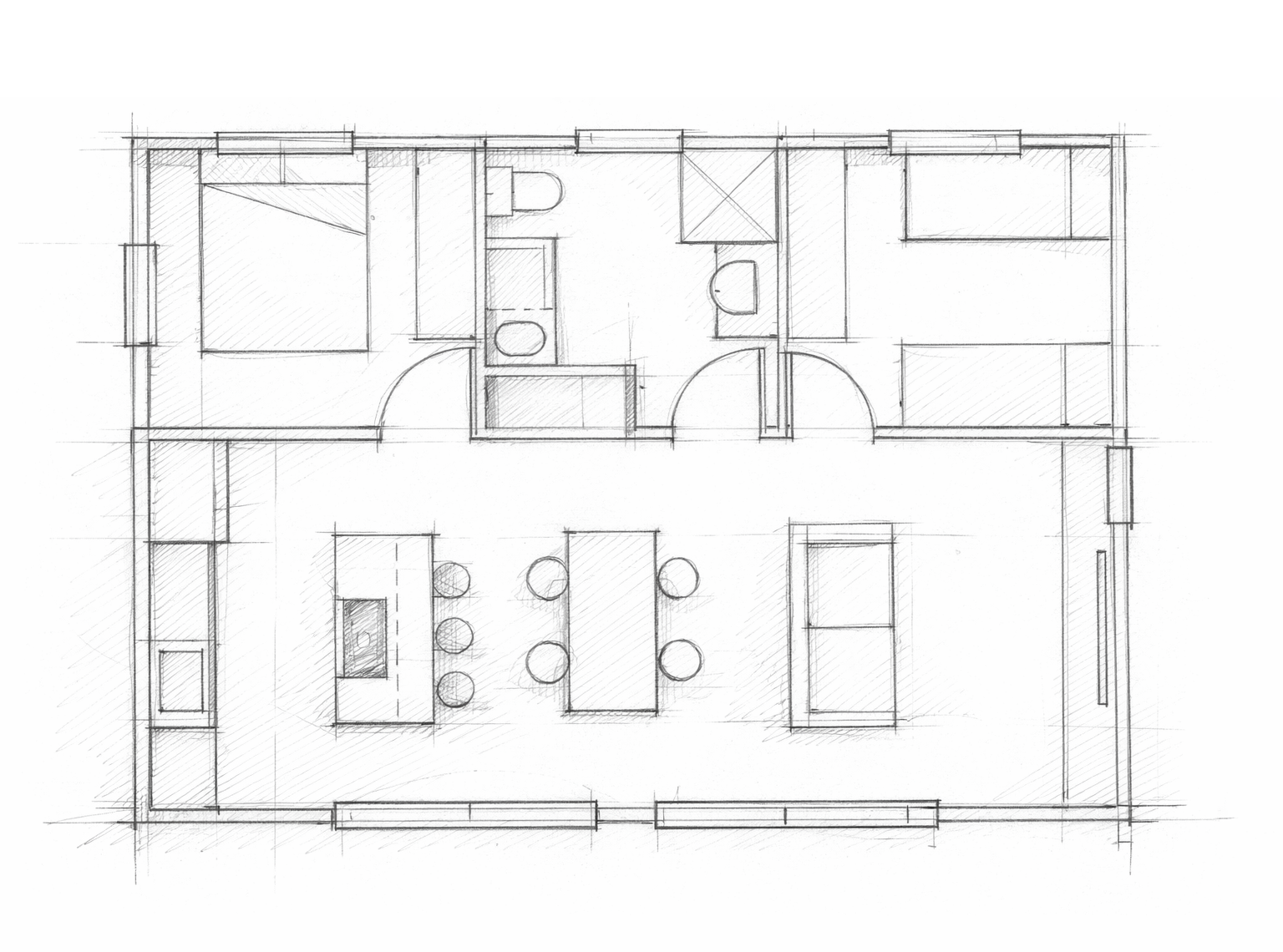
Show Me The Money

This one is for investors or those needing more accommodation. A comfortable three Bedroom with build in robes, combined bathroom/laundry, separate toilet - an uncomplicated construction designed to serve.

When oriented on a northern aspect these designs take advantage of natural passive solar design features as well as cross flow ventilation, meaning a more comfortable home that contributes to lower energy bills. Smart!

Call to arrange a no obligation project assessment

Call Kathy 0413 126 238